Voisins-Le-Bretonneux – ZAC de la Remise Lot 19 / Valophis

Construction de 45 logements sociaux

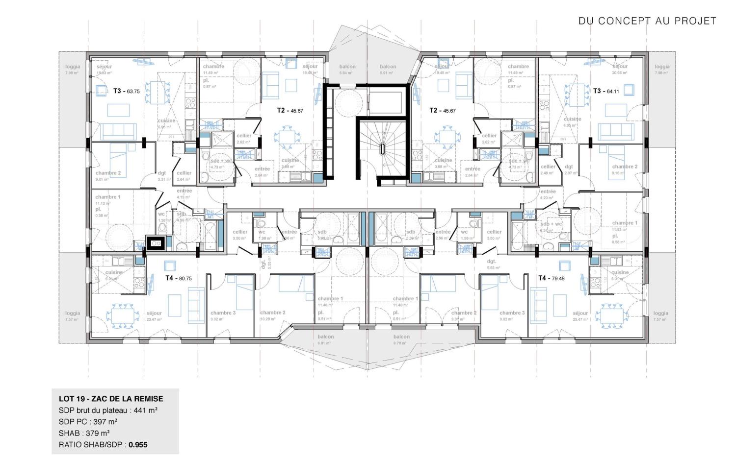
Le projet du Lot 19, intégré dans la ZAC de la Remise, propose une architecture moderne et respectueuse de son environnement. Composé de 45 logements sociaux, il s’inscrit dans une démarche de développement durable et de qualité urbaine.

L’implantation des bâtiments, en deux barrettes symétriques orientées Est-Ouest, répond à un souci d’intégration paysagère et de réduction du bruit routier. Un jardin central généreusement végétalisé devient un lieu de convivialité, accessible à tous les résidents. Les façades, traitées avec une maille métallique laquée, créent une ambiance contemporaine tout en protégeant les espaces privés.

Le choix des matériaux et la distribution des volumes visent à offrir à chaque logement un confort optimal : lumière naturelle, espace extérieur et intimité préservée. Ce projet met l’accent sur une conception soignée, alliant esthétisme, fonctionnalité et respect de l’environnement, pour un cadre de vie agréable et durable.

MAÎTRES D’OUVRAGE :
Valophis

ADRESSE :
Route de Trappes
Voisins-Le-Bretonneux (78960)

BET : TEKHNE
économiste : TEKHNE
paysagiste : ERA Paysagistes

SURFACE DE PLANCHER :
2 962 m² de SDP logements
2 806 m² de SHAB

PERFORMANCE ÉNERGÉTIQUE :
NF Habitat HQE – niveau d’entrée
Label E+C- niveau E2C1

PHASE :
concours lauréat (2019)
Livré en 2024

PHOTOS :
Charlotte Bommelaer photographe

Le projet du Lot 19, intégré dans la ZAC de la Remise, propose une architecture moderne et respectueuse de son environnement. Composé de 45 logements sociaux, il s’inscrit dans une démarche de développement durable et de qualité urbaine.

L’implantation des bâtiments, en deux barrettes symétriques orientées Est-Ouest, répond à un souci d’intégration paysagère et de réduction du bruit routier. Un jardin central généreusement végétalisé devient un lieu de convivialité, accessible à tous les résidents. Les façades, traitées avec une maille métallique laquée, créent une ambiance contemporaine tout en protégeant les espaces privés.

Le choix des matériaux et la distribution des volumes visent à offrir à chaque logement un confort optimal : lumière naturelle, espace extérieur et intimité préservée. Ce projet met l’accent sur une conception soignée, alliant esthétisme, fonctionnalité et respect de l’environnement, pour un cadre de vie agréable et durable.

MAÎTRES D’OUVRAGE :
Valophis

ADRESSE :
Route de Trappes
Voisins-Le-Bretonneux (78960)

BET : TEKHNE
économiste : TEKHNE
paysagiste : ERA Paysagistes

SURFACE DE PLANCHER :
2 962 m² de SDP logements
2 806 m² de SHAB

PERFORMANCE ÉNERGÉTIQUE :
NF Habitat HQE – niveau d’entrée
Label E+C- niveau E2C1

PHASE :
concours lauréat (2019)
Livré en 2024

PHOTOS :
Charlotte Bommelaer photographe

chargement en cours